FacebookPixel
Apartamento T2, Viseu, Viseu
Ref: V411580

Apartamento T2, Viseu, Viseu

275.000 €
Criar alerta para este imóvel Informamos se existir uma baixa de preço.
Insira os seus dados.
 
   
Campos obrigatórios Enviar alerta
José Lourenço
Gerente José Lourenço joselourenco@habifactus.com 969 803 181 (Chamada para a rede móvel nacional)
 
   
 
Enviar
Descrição Venha conhecer este novo edifício em fase de construção na cidade de Viseu!

Localizado numa das mais prestigiadas zonas da cidade, onde poderá usufruir do elevado nível de serviços que a mesma oferece, como na saúde e educação dos seus filhos, bem como de todas as necessidades do nosso dia à dia!

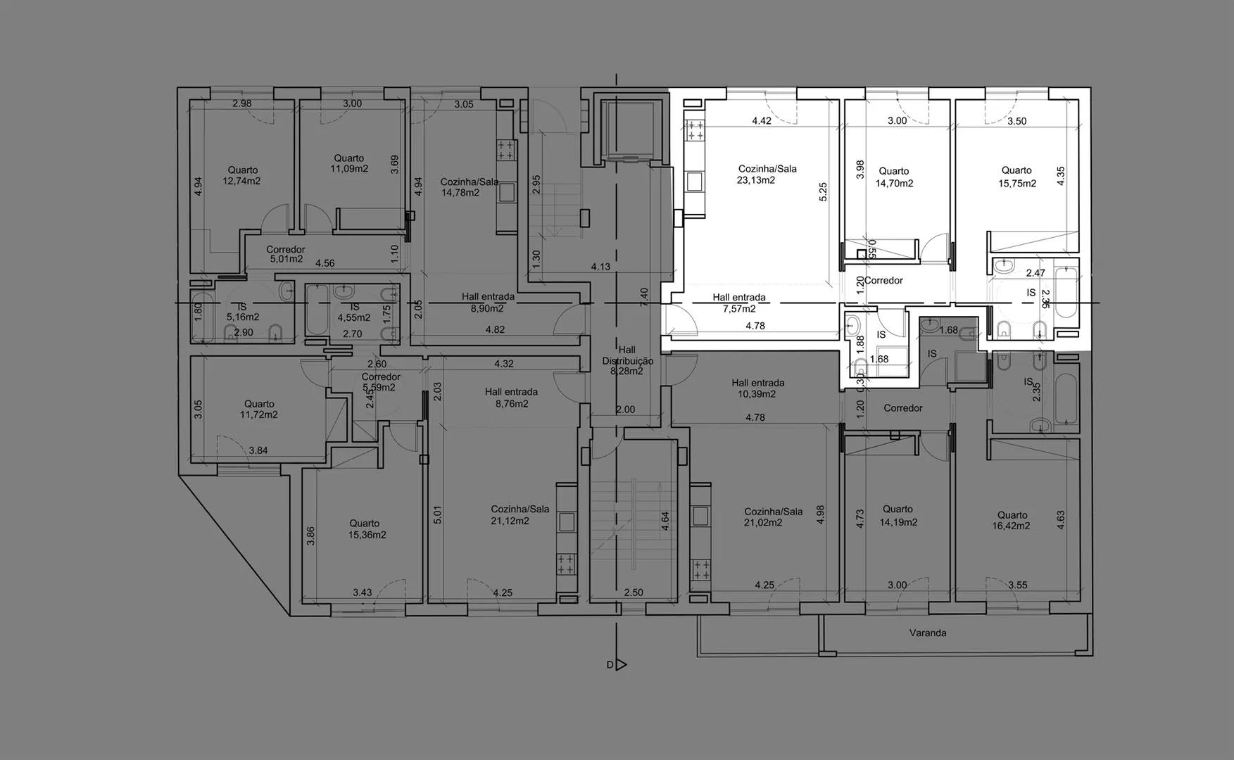
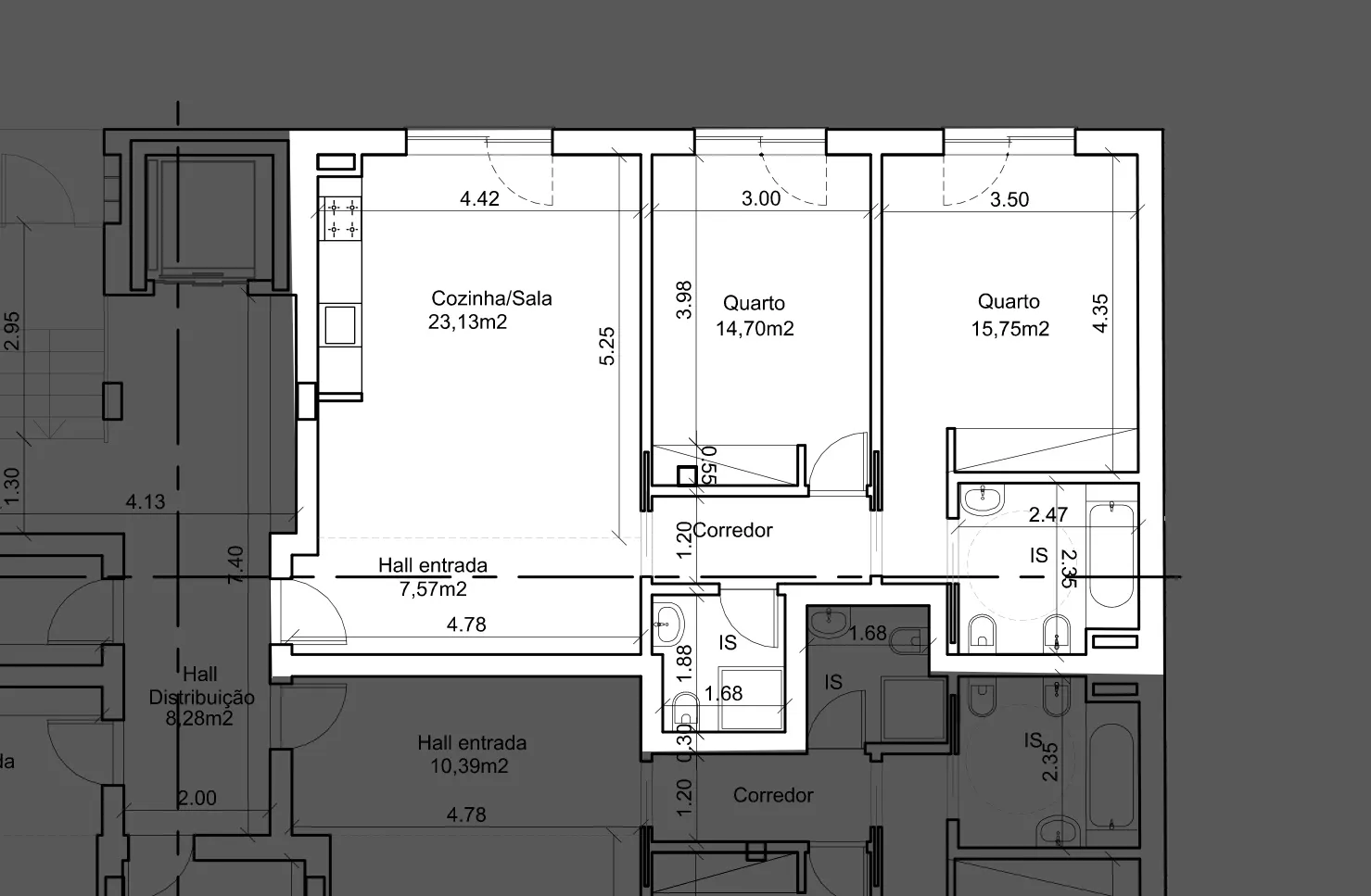
Este edifício é composto por 16 frações exclusivamente habitacionais de tipologias T2 e T2 Dpx com terraços privativos e distribuídas por 4 pisos.

Todas as frações ficam equipadas com;

- Ar condicionado Bosch

-Bomba de calor 200L para aquecimento de águas sanitárias.

-Móveis de cozinha termolaminado branco equipada com placa, forno e exaustor.

-Quartos de banho com móvel e louças suspensas, base de duche com resguardo e cerâmicos retificados.

-Todos os quartos possuem armários embutidos, sendo que algumas frações possuem ainda um armário adicional nas zonas comuns.

-Os pavimentos serão em flutuante nas zonas secas e cerâmicos nas zonas húmidas.

-Todos os tetos serão falsos, com iluminação embutida e isolamento acústico, o que permite um melhor conforto na utilização da sua casa, no seu dia à dia.

-O edifício possui um elevador e cada fração um lugar de estacionamento na cave.

Se procura um imóvel para investimento ou sua habitação própria permanente, venha conhecer!
  • 2 quartos
  • 2 wcs
  • 1 Garagem
  • 78 Área Útil(m2)
  • 0 Área Terreno(m2)
  • Localização Viseu
Certificação
Energética

A
Partilhe
este imóvel

Imprimir ficha
de imóvel

Descrição
  • Objectivo Venda
  • Estado Em Construção
  • Tipo Apartamento
  • Tipologia T2
  • Distrito Viseu
  • Concelho Viseu
  • Freguesia Ranhados
  • Zona N/D
Características Gerais
Gerais
Divisões
Divisões Área Pavimento Paredes Tectos Observações
Meio Envolvente
Facilidades
Domótica
Energias Renováveis
Imóveis relacionados Também poderá estar interessado nestes imóveis
Apartamento T2
Apartamento T2 Viseu, Viseu
270.000 €
Apartamento T2
Apartamento T2 Viseu, Viseu
287.500 €
Apartamento T2
Apartamento T2 Viseu, Viseu
275.000 €
x
O nosso website usa cookies para ajudar a melhorar a sua experiência de utilização. Ao utilizar o website, confirma que aceita a sua utilização. Esperamos que esteja de acordo. Política de Utilização de Cookies Fechar