FacebookPixel
Lotissement de terrain, Viseu, Tondela
Ref: T0161

Lotissement de terrain, Viseu, Tondela

45.000 €
Créer l´alerte de cette propriété Nous vous informons si il ya une baisse de prix.
Entrez vos informations.
 
   
Champs obligatoires Envoie une alerte
 
   
 
Envoyer
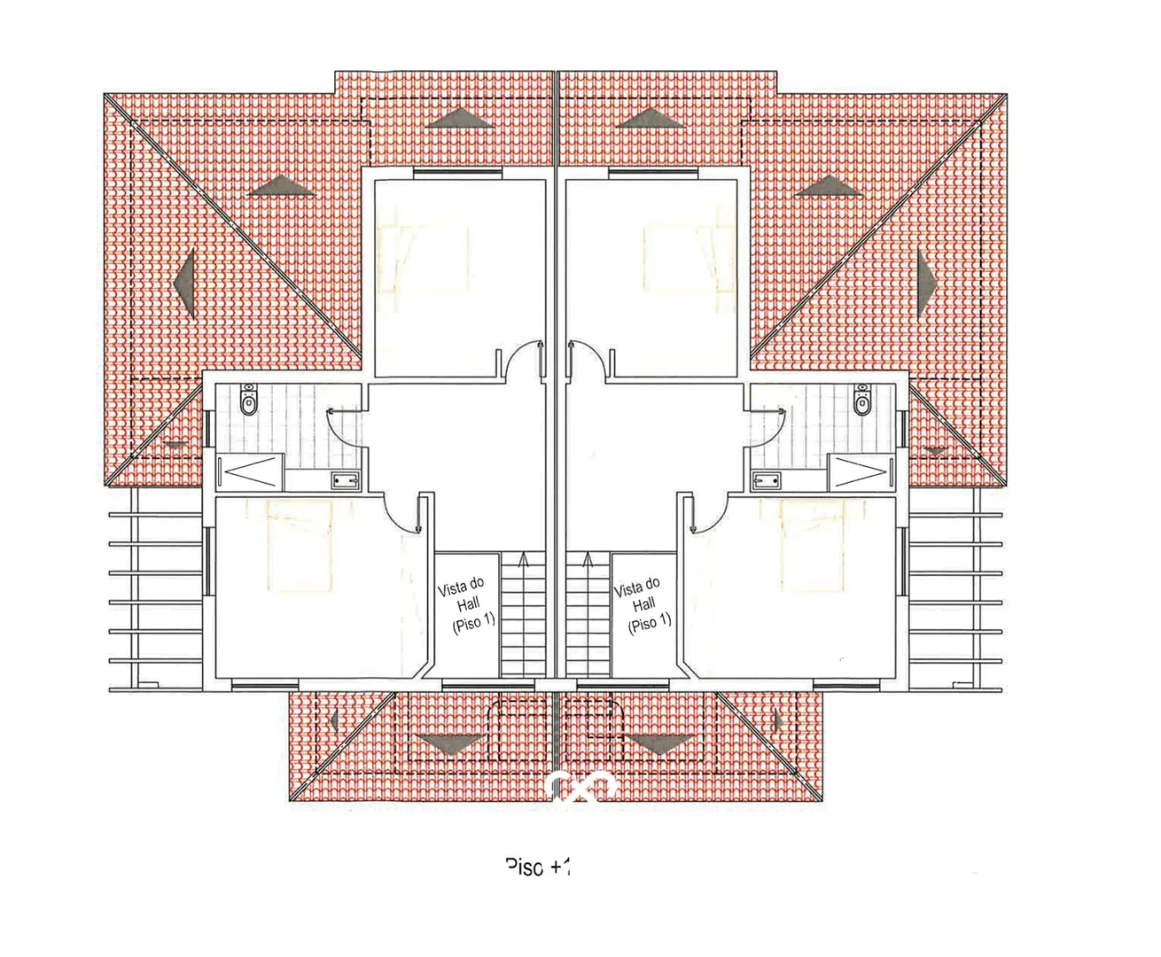
Description Deux lots urbains, avec projet approuvé, Tondela.

Si vous êtes à la recherche d’un ou deux terrains à construire, c’est l’opportunité que vous recherchez, avec un projet éprouvé de deux maisons jumelées, mais vous pouvez toujours changer pour des projets à votre goût.

L’une des plus grandes zones industrielles de Tondela, à 10 minutes du centre-ville, avec un accès rapide aux principales voies d’accès à la Municipalité (IP3, IP5 et A25).

Beaucoup d’exposition au soleil et une vue imprenable.

Avec toutes les infrastructures (Assainissement, eau de l’entreprise, électricité, fibre).

Excellente opportunité d’affaires pour investir ou même pour construire la maison de vos rêves.

Réservez votre visite dès maintenant !
 
  • 0 chambres
  • 0 wcs
  • 0 Garage
  • 0 Surface Habitable(m2)
  • 1257 Surface de Terrain(m2)
  • Emplacement Viseu
Certification
Énergie

Exonéré
Partager
cette propriété

Imprimer fiche

Description
  • But Vente
  • Etat N/D
  • Type Lotissement de terrain
  • Typologie N/D
  • Département Viseu
  • Ville Tondela
  • Lieu Santiago de Besteiros
  • Zone N/D
Caractéristiques générales
Général
Pièces
Pièces Lieu Étage Murs Plafonds Commentaires
Environnement
Commodités
Domotique
Energies Renouvelables
x
Notre site utilise des cookies pour aider à améliorer votre expérience d´utilisateur. En utilisant le site Web, vous confirmez que vous acceptez leur utilisation. Espoir d´accord. Politique d´utilisation des Cookies Fermer