FacebookPixel
Moradia Geminada T3+1, Viseu, Viseu
Ref: V211623

Moradia Geminada T3+1, Viseu, Viseu

545.000 €
Exclusivo
Criar alerta para este imóvel Informamos se existir uma baixa de preço.
Insira os seus dados.
 
   
Campos obrigatórios Enviar alerta
João Pereira
Consultor Imobiliário João Pereira joaopereira@habifactus.com 962 486 206 (Chamada para a rede móvel nacional)
 
   
 
Enviar
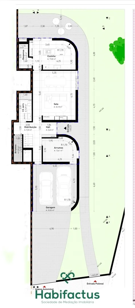
Descrição Moradia Bi-familiar T3+1 à venda em Orgens
Descubra esta magnífica moradia com a área bruta de 281 m2 projetada com materiais de alta qualidade e funcionalidades modernas.

-Distribuição de Áreas -
A moradia é composta por dois pisos, organizados de forma eficiente e funcional:
Piso 1

Garagem: Espaçosa para dois automóveis.
Escritório: Um espaço versátil que pode ser usado como home office, sala de estudo ou quarto de hóspedes.
Cozinha equipada e luminosa, sala ampla e luminosa para momentos em família.
Casa de Banho Completa.
Escadaria harmoniosa de acesso ao piso superior.
Hall espaçoso.

Piso 2
Dois Quartos com Roupeiros Embutidos: Confortáveis e com excelente aproveitamento de espaço.
Suíte: Inclui um quarto espaçoso com roupeiro, casa de banho privativa e uma varanda perfeita para desfrutar com tranquilidade.
Casa de Banho Completa: Com acabamentos modernos, serve de apoio aos restantes quartos.

Características

Piso radiante
Estores Elétricos: Praticidade e conforto em todas as divisões.
Pré instalação de ar condicionado.
Materiais de Alta Qualidade: Construção com foco na durabilidade e na elegância.
Abundante luz natural durante todo o dia.
Espaço exterior/Jardim agradável
Churrasqueira
  • 3 quartos
  • 3 wcs
  • 1 Garagem
  • 172,7 Área Útil(m2)
  • 529,3 Área Terreno(m2)
  • Localização Viseu
Certificação
Energética

A
Partilhe
este imóvel

Imprimir ficha
de imóvel

Descrição
  • Objectivo Venda
  • Estado Em Construção
  • Tipo Moradia Geminada
  • Tipologia T3+1
  • Distrito Viseu
  • Concelho Viseu
  • Freguesia Orgens
  • Zona N/D
Características Gerais
Gerais
Divisões
Divisões Área Pavimento Paredes Tectos Observações
Meio Envolvente
Facilidades
Domótica
Energias Renováveis
Imóveis relacionados Também poderá estar interessado nestes imóveis
Moradia Geminada T3+1
Moradia Geminada T3+1 Viseu, Viseu
530.000 €
Moradia Geminada T3+1
Moradia Geminada T3+1 Viseu, Viseu
560.000 €
x
O nosso website usa cookies para ajudar a melhorar a sua experiência de utilização. Ao utilizar o website, confirma que aceita a sua utilização. Esperamos que esteja de acordo. Política de Utilização de Cookies Fechar