FacebookPixel
Moradia Isolada T3, Viseu, Carregal do Sal
Ref: N0674

Moradia Isolada T3, Viseu, Carregal do Sal

76.500 €
Criar alerta para este imóvel Informamos se existir uma baixa de preço.
Insira os seus dados.
 
   
Campos obrigatórios Enviar alerta
José Rebelo
Consultor Imobiliário José Rebelo joserebelo@habifactus.com 914 700 953 (Chamada para a rede móvel nacional)
 
   
 
Enviar
Descrição Moradia T3 à venda com Estrutura Sólida já construída em Beijós – Oportunidade Única para Concretizar o Seu Projeto de Sonho!

Apresentamos-lhe esta excelente oportunidade de investimento no coração da Beira Alta: uma moradia T3 com estrutura já construída, situada em Parada na freguesia de Beijós, no concelho de Carregal do Sal, distrito de Viseu.

Com uma localização privilegiada, esta propriedade oferece o equilíbrio perfeito entre a serenidade do campo e a proximidade a serviços essenciais. A estrutura sólida da moradia já se encontra erguida, permitindo-lhe poupar tempo e custos significativos na fase inicial da construção. Ideal para quem procura personalizar o seu lar ao seu gosto, com a liberdade de escolher acabamentos, divisões interiores e detalhes arquitetónicos.
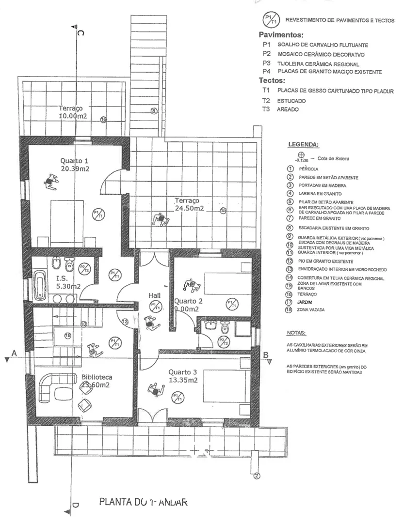
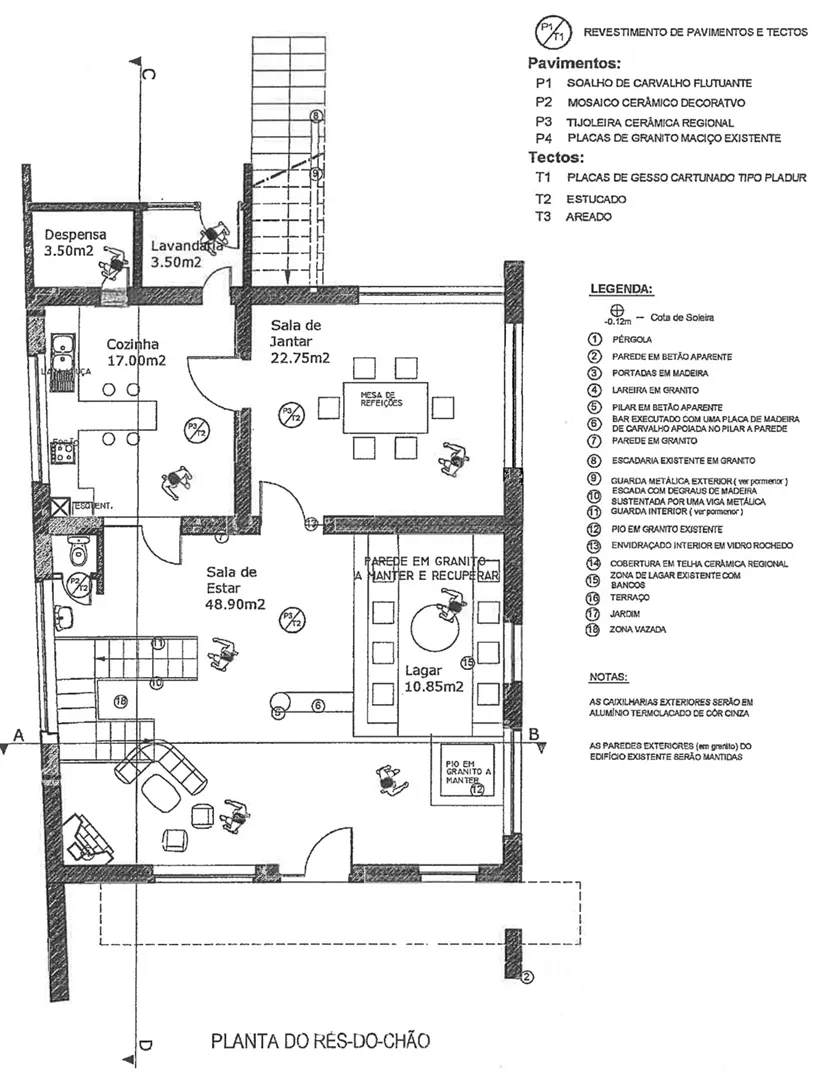
A moradia está projetada para oferecer:
  • 3 quartos ;
  • Sala de estar e sala de jantar;
  • Cozinha ;
  • 2 casas de banho;
  • Espaço exterior com potencial para jardim, horta ou zona de lazer;
  • Possibilidade de garagem ou anexo adicional.
Inserida num lote com boa exposição solar e vistas desafogadas para a paisagem natural envolvente, esta propriedade é perfeita tanto para residência permanente como para casa de férias ou investimento turístico.

Beijós é uma freguesia acolhedora, com forte tradição rural, situada a poucos minutos da vila de Carregal do Sal, onde encontrará escolas, supermercados, farmácias, serviços de saúde e acesso facilitado à EN234 e à linha ferroviária da Beira Alta.

Não perca esta oportunidade de transformar esta estrutura numa casa de sonho, num local onde a tranquilidade e a qualidade de vida são garantidas.
Contacte-nos para mais informações ou para agendar uma visita ao local.
  • 3 quartos
  • 1 wcs
  • 0 Garagem
  • 270 Área Útil(m2)
  • 270 Área Terreno(m2)
  • Localização Viseu
Certificação
Energética

Isento
Partilhe
este imóvel

Imprimir ficha
de imóvel

Descrição
  • Objectivo Venda
  • Estado Para remodelar
  • Tipo Moradia Isolada
  • Tipologia T3
  • Distrito Viseu
  • Concelho Carregal do Sal
  • Freguesia Beijós
  • Zona N/D
Características Gerais
Gerais
Divisões
Divisões Área Pavimento Paredes Tectos Observações
Meio Envolvente
Facilidades
Domótica
Energias Renováveis
x
O nosso website usa cookies para ajudar a melhorar a sua experiência de utilização. Ao utilizar o website, confirma que aceita a sua utilização. Esperamos que esteja de acordo. Política de Utilização de Cookies Fechar